空き家情報
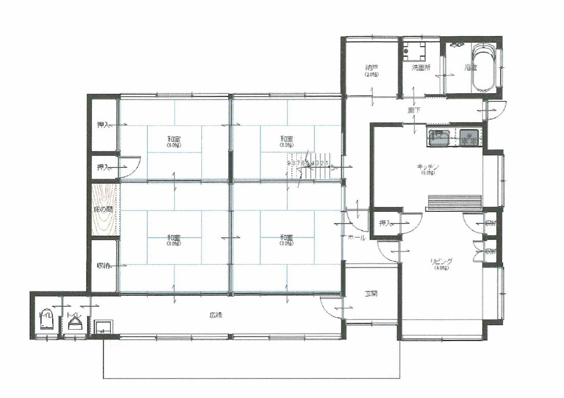
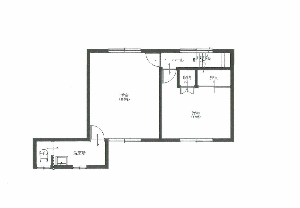
106_畑や農機具小屋のついた2階建て住宅
物件情報詳細
| 築年数 | 67年 |
|---|---|
| 建物構造 | 木造2階建て |
| 土地面積(宅地) | 449.20㎡ |
| 土地面積(農地) | 2,627㎡ |
設備情報
| 電気 | 引き込み済 |
|---|---|
| ガス | プロパンガス |
| 風呂 | ボイラー(要設置) |
| 上下水道 | 有 |
| トイレ | 水洗 |
| 車庫 | 無 |
| 庭 | 有 |
空き家に関するお問い合わせ
立科町 企画課企画振興係
TEL:0267-88-7315/FAX:0267-56-2310
開庁時間:8:30~17:15
空き家情報
| 築年数 | 67年 |
|---|---|
| 建物構造 | 木造2階建て |
| 土地面積(宅地) | 449.20㎡ |
| 土地面積(農地) | 2,627㎡ |
| 電気 | 引き込み済 |
|---|---|
| ガス | プロパンガス |
| 風呂 | ボイラー(要設置) |
| 上下水道 | 有 |
| トイレ | 水洗 |
| 車庫 | 無 |
| 庭 | 有 |
立科町 企画課企画振興係
TEL:0267-88-7315/FAX:0267-56-2310
開庁時間:8:30~17:15